Bem-vindo à GEMA Shop - o seu especialista em tecnologia de aquecimento, solar e sanitária desde 1991. Aconselhamo-lo pessoalmente e oferecemos soluções técnicas que realmente funcionam.
  • envio rápido

  • Ajuda e aconselhamento gratuitos

  • Aberto 7 dias por semana

Anhaltinering 17, 39439 Güsten

A.B.S.  |  SKU: HP12/16G

A.B.S. Silo de pellets Flexilo Standard

Nome: A.B.S. Silo- und Förderanlagen GmbH

Endereço: Industriepark 100, 74706 Osterburken

E-mail: info@abs-silos.de

Website: https://abs-silos.de/

Fabricante Europeu: Sim

Preço normal 2.387,54 €
inkl. MwSt. Kostenloser Versand innerhalb Deutschland

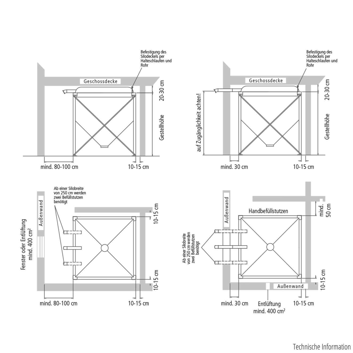
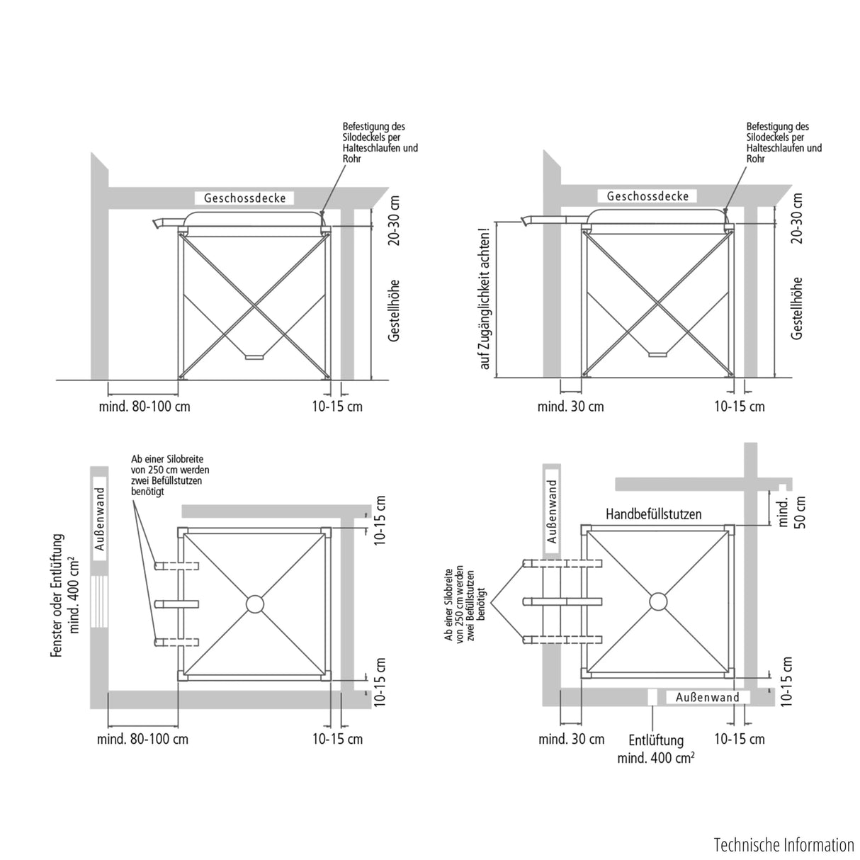
Dimensões do quadro
Altura da sala

Entrega e envio

O tempo de processamento geralmente é de 1 dia útil. O prazo de entrega dos produtos embalados é de 1 a 3 dias úteis. Para mercadorias encaminhadas, o prazo de entrega é de 3 a 5 dias úteis. Os prazos de entrega fora da Alemanha são diferentes.

Descrição

A.B.S. Silo de pellets Flexilo Standard – O clássico entre os silos de pellets de madeira.

Outros tamanhos e tamanhos personalizados disponíveis mediante solicitação. para o formulário de contato

Descrição do produto

O A.B.S. O silo de pellets Flexilo Standard é um produto versátil e comprovado, com design clássico e descarga cônica em tecido. Essa construção garante uma descarga segura e uniforme dos pellets, sendo ideal para aquecer sua casa de forma confiável mesmo nos meses mais frios.

Este tipo de silo pode ser combinado com praticamente qualquer unidade de extração e, graças ao seu design robusto e simples, oferece uma solução durável para aplicações privadas e comerciais.

Dados técnicos

O Flexilo Standard está disponível em tamanhos com capacidade de enchimento de até 9,4 toneladas. Este modelo possui uma saída de tecido cônica, é compatível com todas as caldeiras a pellets e apresenta um design que facilita a manutenção. O prazo de entrega típico é de 2 a 3 semanas.

Vantagens

O design clássico, aliado à saída cônica de tecido, garante a descarga confiável dos grânulos e minimiza a formação de pontes. Sua alta compatibilidade com diversas unidades de extração torna o sistema muito versátil.

Outras vantagens incluem montagem rápida, baixos custos de manutenção e a possibilidade de conectar vários silos em cascata para abranger faixas de desempenho maiores.

Montagem e instalação

O Flexilo Standard foi projetado para uma montagem simples e rápida, permitindo que o silo entre em operação rapidamente. As conexões de extração e descarga podem ser acopladas a praticamente qualquer caldeira, simplificando a integração em sistemas de aquecimento existentes.

Para um funcionamento ideal e uma longa vida útil, recomendamos a instalação profissional por um técnico experiente, especialmente se vários silos forem conectados em cascata.

Manutenção e cuidados

O Flexilo foi projetado para facilitar a manutenção e requer cuidados mínimos. Inspeções visuais regulares e a prevenção da umidade na área de armazenamento prolongam a vida útil do sistema e garantem uma descarga confiável.

Em caso de contaminação ou para verificar o mecanismo de descarga, uma breve inspeção geralmente é suficiente; peças de reposição e assistência técnica estão disponíveis rapidamente, se necessário.

Áreas de aplicação

O silo de pellets é adequado para residências unifamiliares, prédios de apartamentos, imóveis comerciais, fazendas e instalações municipais. Graças à sua flexibilidade em termos de tamanho e opções de conexão, pode ser utilizado em diversas situações de aquecimento.

Escopo da entrega & serviço

A entrega inclui o silo de tecido com saída cônica e instruções de montagem; dependendo do pedido, unidades de distribuição adicionais ou espirais para soluções em cascata estão disponíveis separadamente. O prazo de entrega é normalmente de 2 a 3 semanas.

O suporte do fabricante e do revendedor oferece aconselhamento sobre seleção, planejamento e montagem, bem como fornecimento de peças de reposição, se necessário.

Recomendação

O A.B.S. O silo de pellets Flexilo Standard é a escolha ideal se você busca uma solução comprovada, flexível e econômica para armazenamento de pellets. Para necessidades de maior capacidade, recomenda-se a combinação de vários silos em cascata com uma espiral contínua.

Contate seu revendedor especializado para obter uma oferta personalizada e aconselhamento sobre o tamanho adequado e a melhor conexão para sua caldeira a pellets.

Escopo da entrega

  • Saco silo com defletor costurado e abertura de inspeção (bocal de enchimento manual)
  • Estrutura de aço galvanizado como sistema plug-in incl.Material de montagem
  • Sistema de enchimento adequado (enchimento lateral padrão)
  • Estrutura de suporte para a tampa do silo (tubo de ½" deve ser fornecido no local)
  • Instruções de montagem
  • Sem unidade de extração

Pagamento e segurança

Opções de pagamento

  • American Express
  • Apple Pay
  • Bancontact
  • BLIK
  • EPS
  • Google Pay
  • iDEAL Wero
  • Klarna
  • Maestro
  • Mastercard
  • MobilePay
  • PayPal
  • Przelewy24
  • Shop Pay
  • Union Pay
  • Visa

Suas informações de pagamento são processadas com segurança. Não armazenamos informações de cartão de crédito e não temos acesso às informações do seu cartão de crédito.

Contate-nos